Představení nemovitosti
Chci si přečíst o nemovitosti víceNemovitost je vybavena video zvonkem v zádveří domu a také v podkroví, objekt je napojen na CPU a vybaven alarmem.
Na pozemku jsou drobné dřevěné stavby, větší aktuálně slouží k ukládání zahradního vybavení a druhá disponuje bazénovou technologií.
Bazén je díky vzrostlé zeleni ukrytý před sousedy, vybavený je protiproudem, osvětlením a napojen na pískovou filtraci s ionizační lampou, včetně automatizace chemie (chlor).
Ohřev je zajištěn tepelným čerpadlem, včetně možnosti zakrytí termo folií.

K relaxaci je k dispozici sauna umístěna v podkroví. Pro venkovní relax je připravena pergola s posezením.

Na rovinatém pozemku je vysazena, jak okrasná zeleň, tak jedlé plody. Zalévání je řešeno závlahou v několika okruzích. Pravidelnou úrodu zajištuje hned několik vzrostlých stromů. Meruňka, višeň, třešeň, švestka. Velikost pozemku zaručuje i rychlou údržbu posekáno máte za 20 minut komplet i s přestávkou na občerstvení
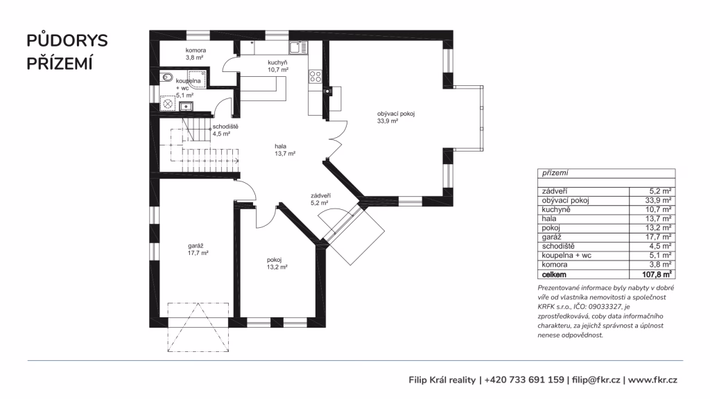
Kuchyně je umístěna samostatně, výhodou je denní světlo a celkové uspořádání včetně baru s posezením. K dispozici je kompletně vybavená kuchyně: indukce, digestoř, myčka, horkovzdušná trouba, mikrovlnná trouba vestavná chladnička s mrazákem. Příjemným benefitem je dostatek úložných ploch a také navazující komora.
Přízemí domu disponuje zádveřím pro odložení a navazuje na halu s kuchyní, schodištěm a pokojem pro hosty včetně menší koupelny. V případě nepřiznivého počasí využijete přímí vstup do garáže. Dvoukřídlé dveře oddělují samostatný obývací pokoj se vstupem na zahradu. Přízemí domu disponuje podlahovým vytápěním (vodní).

Podkroví je díky sklonu střechy 40 stupňů dostatečně prostorné s aktuální dispozicí dvou velkých pokojů (ložnice). Podrobné rozměry si můžete prohlédnout. Dále je na patře menší fitness a velká koupelna. V hale je také možnost vytvořit menší pracovní kout. K dispozici je i zateplená půda pro odložení vánočních ozdob.
Pokoj pro hosty a pracovna je díky velkému prosklení dostatečně světlé, a navíc nabízí velký balkón s pohledem do zahrady. Výhled na panorama krajiny taktéž není k zahození.
V hlavní koupelně se podařilo co nejlépe rozložit vybavení pro získaní co nejefektnějšího využití. K dispozici je parní kabina se sprchou, masážemi a radiem, dále dvojice umyvadel s velkou galerií s úložnými prostory a dále velká rohová vana, kterou musí mít každý dům z těchto let (kolaudováno 2007). Předností je i denní světlo a minimální zásah sklonu střechy.
Nejmenší pokoj na patře je aktuálně využitý jako skromné fitko, které děla stávající majitelce každodenní radost už dlouhá letá. Vy ale rozhodnete o využití místnosti, která pohodě může sloužit jako pracovna, šatna nebo prádelna a prostor pro žehlení.
Ložnice paní majitelky je volný otevřený prostor s částečnou příčkou, která tvoří šatnu.
Sauna (elektrická) je druhým domovem, a proto je umístěna v domě v podkroví, výhodou je světlost a přístup na balón. V případě odstranění sauny a šatny je k dispozici velká ložnice s rozumnou variabilitou.
Nemovitost je typový dům společnosti G-servis s označením Premier 140 s drobnými individuálními změnami usazeným na rovinatý pozemek 685 m2 se zahradou 523 m2.
Dispozice 5+1 se zastavěnou plochou 132 m2 a vnitřní plochou 220 m2 na kterých si užijete spoustu radosti. Stavba je v dobrém technickém stavu. V případě že budete chtít probrat podrobnější informace jsem vám k dispozici





























