Představení nemovitosti
Do prostor domu byly instalovány i vkusné moderní prvky v podobě nového osvětlení, nástěnných radiátorů a dřevěného obložení.
Samozřejmostí je i nový výtah, kam se vejdete i s kočárkem.

Umístění domu na Vinohradské ulici přímo proti parku Svatopluka Čecha vám přinese nejen výhled do zeleně, ale i značnou míru soukromí. Protější domy mají odstupovou vzdálenost přes 100 m. Západy slunce můžete pozorovat díky dvojici balkónů.
Sady Svatopluka Čecha byly před nedávnem rekonstruovány. Na 25 tisících m² najdete dostatek prostoru pro vycházku se svým čtyřnohým přítelem. Dětské hřiště je vzdáleno od domu 3 minuty chůzí a Riegrovy sady s rozlohou 11 hektarů jsou pro ranní výběh ideální.
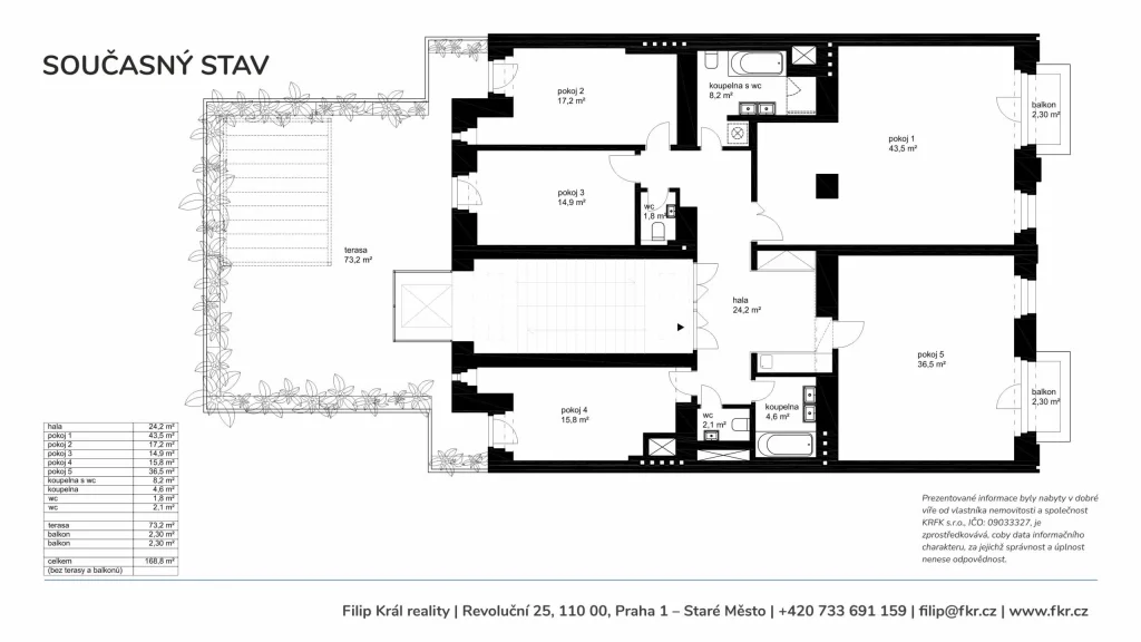
Vlastní soukromá terasa ve vnitrobloku vás překvapí klidem, který v tomto místě rozhodně nečekáte. Terasa s výměrou 70 m² je přístupná ze tří neprůchozích pokojů. Soukromí zajišťuje vzrostlá zeleň po obvodu celé terasy. Komfortu přispívá elektrická pergola, závlaha a další nezbytnosti, jako jsou voda a elektřina.
Terasa byla pravidelně ošetřována a díky tomu je v perfektním stavu.

Prostory disponují dvojící elegantních koupelen v jednotných barvách a jsou vybavené prémiovou sanitou doplněnou o chromové prvky. O komfort se stará podlahové elektrické vytápění.
K dispozici vám jsou i dvě samostatné toalety.

Trojice neprůchozích pokojů je orientována do vnitrobloku. Všechny pokoje mají vždy samostatný vstup na terasu. Momentálně je v prostorách elegantní kancelář.
Kompletně celý prostor se rozléhá na jednom patře s výměrou necelých 170 m² podlahové plochy.

Největší pokoj s výměrou 43,5 m² je situován do parku. V případě potřeby je možné v této místnosti umístit kuchyň. Kompletně celý interiér byl navržen architektonickým studiem QARTA. Studio vytvořilo elegantní kancelářský prostor, který lze jednoduše upravit na pohodlné bydlení. (Jedná se o 2 bytové jednotky).
Neformální část kanceláře šikovně ukrývá lůžko. Pokud se váš pracovní den protáhne, jednoduše využijete přespání na pohodlné posteli s roštem. Možnost, kterou budete v těchto typech prostorů hledat jen velmi těžce. Vše je skryto za elegantní knihovnou s úložnými prostory navazujícími na minibar s vinotékou. Zmínit musíme i velký designový lustr a prémiový nábytek Natuzzi. Orientace místností dopřává prostoru světlost a výhledy do zeleně.
Oficiální zasedací místnost navazuje na centrální halu s kuchyňkou, šatnou a úložnými prostory. Ideální tvar místnosti s rozměrem 36 m² je možné snadno upravit. Kompletně celý prostor vytváří dispozici 5+kk. Výhodou je možnost prostor rozdělit na dvě samostatné jednotky 3+KK a 2+KK.
Vstupní hala je vybavena kuchyňkou a poskytuje tak vše nezbytné pro administrativní provoz. Dále je v hale umístěno velké množství úložných prostor. Pomocí jednoduché příčky lze oba prostory rozdělit. Jednotky mají samostatné měřiče spotřeb a všech medií.
Velmi atraktivní prostory pro podnikání, které budete hledat jen velmi těžko. Naprosto jedinečnou záležitostí je terasa do vnitrobloku.

Kvalitní povrchové úpravy a špičkové materiály jsou vždy zásadní pro dlouhodobou nadčasovost.

V interiéru najdete spoustu šikovných řešení, které prostoru dodávají na jedinečnosti a poskytují komfort a pohodu.

Kompletně celý interiér byl navržen architekty s cílem vytvořit prestižní soukromé sídlo pro úspěšnou firmu.

Parkování zajišťuje dvojice stání v budově, které je řešeno moderním zakladačem s jednoduchým ovládáním. Navíc je k dispozici otočná platforma, která značně usnadňuje manipulaci s vozem.
Vjezd do domu je dostatečně široký.






























